UNDER OFFER -Beautiful Hand-Built Home on 68.96ha of Community Holdings, or 170.4 Acres this is the perfect opportunity for a Cash Buyer!
Set within the beautiful hinterland of Upper Burringbar, this unique property represents one of only 13 shares in the tightly held Kurrajong Hamlet, a community holding spanning 68.96 hectares (170.4 acres) of pristine countryside.
Each shareholder enjoys exclusive use of approximately one hectare surrounding their residence, with the opportunity to request additional use of community land for grazing or other approved purposes.
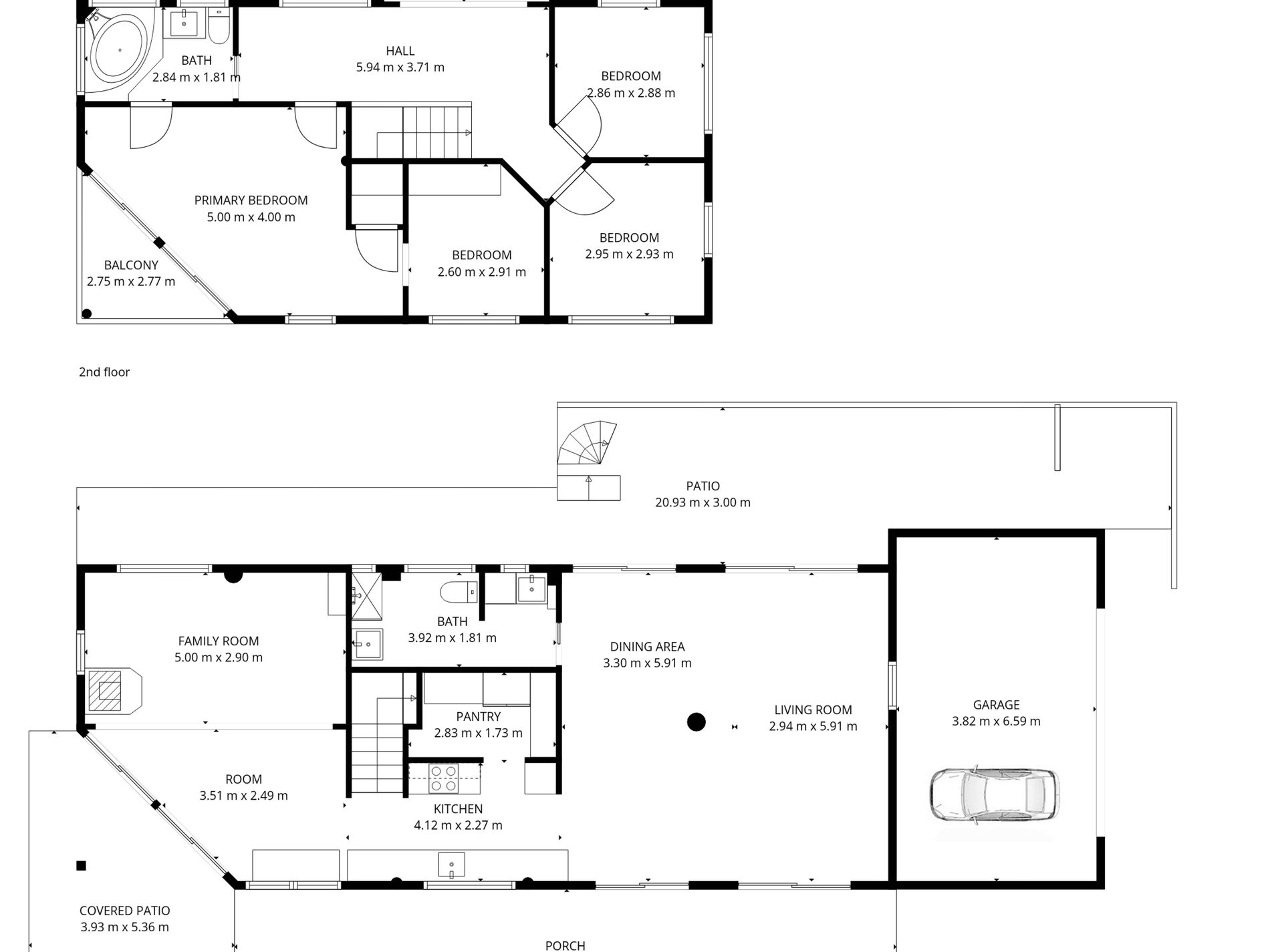
Lovingly hand-built, this charming and character-filled home offers three bedrooms and two bathrooms, thoughtfully arranged over two levels
Inside, you are welcomed by a generous lounge and dining area that flows through to the well-appointed kitchen complete with a butler’s pantry. From here, the home opens into a cosy winter lounge featuring a wood-burning fireplace and air-conditioning for year-round comfort With lots of glass emphasising the spaciousness with beautiful outlook onto the manicured gardens!
Upstairs comprises three bedrooms, all enjoying lovely outlooks and unique featured Windows.
The master bedroom has a large walk-in robe (formerly a fourth bedroom), alongside the second bathroom and a versatile space ideal for a home office, opening out to the upper deck that descends into a private courtyard.
Opportunities within the peaceful Kurrajong Hamlet are rarely offered to the market. This immaculately maintained home and gardens present an exciting chance to secure a lifestyle property within a like-minded, environmentally conscious community.
Water is supplied via a reliable, gravity-fed spring system to individual tanks for each share, with this property benefiting from approximately 22,500 litres of storage. The home also enjoys mains power, complete privacy, and full council approval, with an attached carport and additional space for bikes or storage.
Taking in lovely mountain views, the elevated, flood-free position is gently sloping and just a short stroll to a popular local swimming hole. The property has Fruit trees, a gorgeous clean dam with plunge pool, and established vegetable garden infrastructure — supporting a lifestyle that is as sustainable and self-sufficient as it is serene.
The information contained in the advertising of this property is based on information provided to the agents, and the vendor and agents expressly disclaim any liability arising therefrom. The accuracy of the information cannot be guaranteed, and prospective purchasers should make their own inquiries and form their own judgement as to these matters.
Features
- Air Conditioning
- Open Fireplace
- Reverse Cycle Air Conditioning
- Floorboards
- Inside Spa

















































